Réf : 317
Nouveauté

Saint-Jeoire (74490) Plateau T3 de 58.5 m² avec parking – Saint-Jeoire (74490)

3 Pièce(s)
2 Chambre(s)

Les infos Essentielles

Caractéristiques Valeurs
Code postal 74490
Surface habitable (m²) 60 m²
Surface loi Carrez (m²) 60 m²
Nombre de chambre(s) 2
Caractéristiques Valeurs
Nombre de pièces 3
Etage 1
Mode de chauffage Electrique
Type de chauffage Radiateur
Caractéristiques Valeurs
Format de chauffage Individuel
Balcon OUI
Nombre de parking 1
Année de construction 2025
Caractéristiques Valeurs
Copropriété OUI

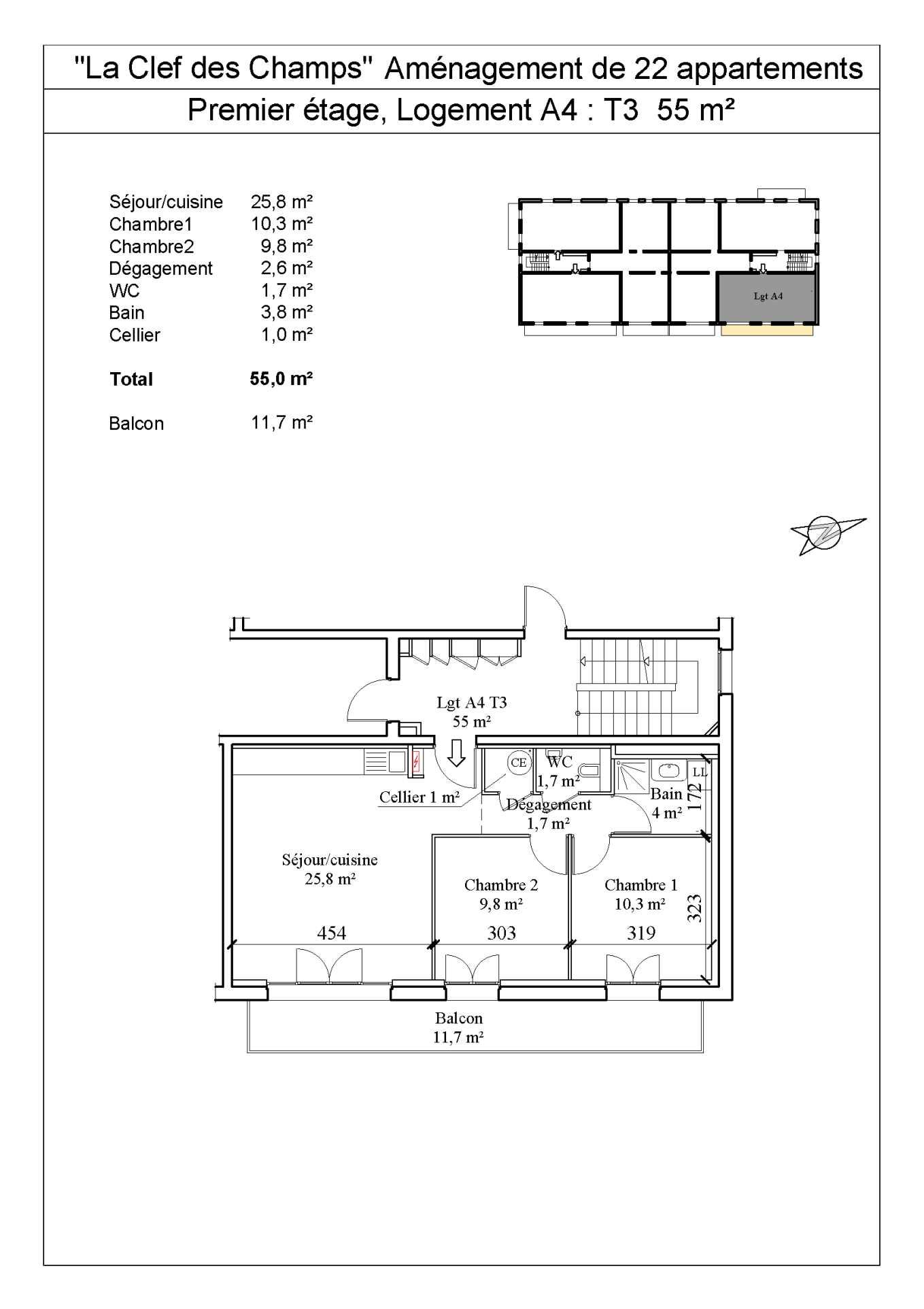
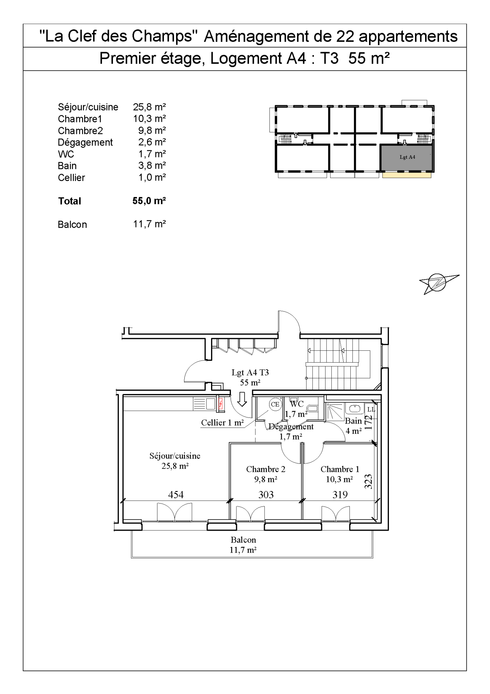
Dans une résidence neuve de 22 appartements située à Saint-Jeoire, découvrez ce T3 de 58.5 m² à vendre en plateau ou fini.

Le bien se compose d’un séjour lumineux avec cuisine ouverte, d’une salle d’eau, de 2 chambres et d'un cellier offrant un espace optimisé et confortable une fois fini.

Livraison prévue au 4ème trimestre 2025.

Une place de parking privative est incluse.

Atouts du bien :

  • Appartement neuf de 44.2 m² en duplex ;

  • Place de parking incluses ;

  • Petite copropriété de 22 logements principaux ;

  • Environnement calme, proche des commodités, idéal pour vivre ou investir ;

Parfait pour un premier achat, un pied-à-terre ou un investissement locatif.

Pour plus d’informations ou pour organiser une visite du site, contactez-nous.

D'autres biens sont disponibles dans cette copropriété, demandez-nous !

Ce bien vous intéresse, vous souhaitez davantage de renseignements ou simplement le visiter ? Contactez Erwin SPECK au 06/60/44/20/90 ou par mail à e.speck@gravityimmo.fr.

Cette annonce a été rédigée sous la responsabilité éditoriale d'Erwin SPECK (EI) agissant sous le statut d’agent commercial immatriculé au RSAC d'Annecy sous le numéro 979 744 935.
"Honoraires d’agence à la charge du vendeur"

Bien non soumis au DPE.

Bien soumis au statut de la copropriété sans procédure en cours, copropriété de 22 lots principaux.

Les informations sur les risques auxquels ce bien est exposé sont disponibles sur le site Géorisques : www.georisques.gouv.fr

Les infos Financières

Prix de vente honoraires TTC inclus 135 000 €

Les infos Energetiques

DPE GES
DPE non concerné
Intéressé(e) par Ce bien ?

* Champ obligatoire

Les informations recueillies sur ce formulaire sont enregistrées dans un fichier informatisé par La Boite Immo agissant comme Sous-traitant du traitement pour la gestion de la clientèle/prospects de l'Agence / du Réseau qui reste Responsable du Traitement de vos Données personnelles. La base légale du traitement repose sur l'intérêt légitime de l'Agence / du Réseau. Elles sont conservées jusqu'à demande de suppression et sont destinées à l'Agence / au Réseau. Conformément à la loi « informatique et libertés », vous disposez des droits d’accès, de rectification, d’effacement, d’opposition, de limitation et de portabilité de vos données. Vous pouvez retirer votre consentement à tout moment en contactant directement l’Agence / Le Réseau. Consultez le site https://cnil.fr/fr pour plus d’informations sur vos droits. Si vous estimez, après avoir contacté l'Agence / le Réseau, que vos droits « Informatique et Libertés » ne sont pas respectés, vous pouvez adresser une réclamation à la CNIL. Nous vous informons de l’existence de la liste d'opposition au démarchage téléphonique « Bloctel », sur laquelle vous pouvez vous inscrire ici : https://www.bloctel.gouv.fr Dans le cadre de la protection des Données personnelles, nous vous invitons à ne pas inscrire de Données sensibles dans le champ de saisie libre.
Ce site est protégé par reCAPTCHA, les Politiques de Confidentialité et les Conditions d'Utilisation de Google s'appliquent.
contacter l'agence
Ces biens peuvent aussi vous intéresser
Marignier (74970)

Terrain contructible - 1224m² - Début de coteau - Proche centre et...

Thyez (74300)

Studio refait à neuf – Plein soleil – Idéal investisseur ou premier...

Nous suivre sur