Réf : 319

Saint-Jeoire (74490) Plateau T4 duplex de 95.3 m² avec parking – Saint-Jeoire (74490)

4 Pièce(s)
3 Chambre(s)
1 Salle(s) de bain

Les infos Essentielles

Caractéristiques Valeurs
Code postal 74490
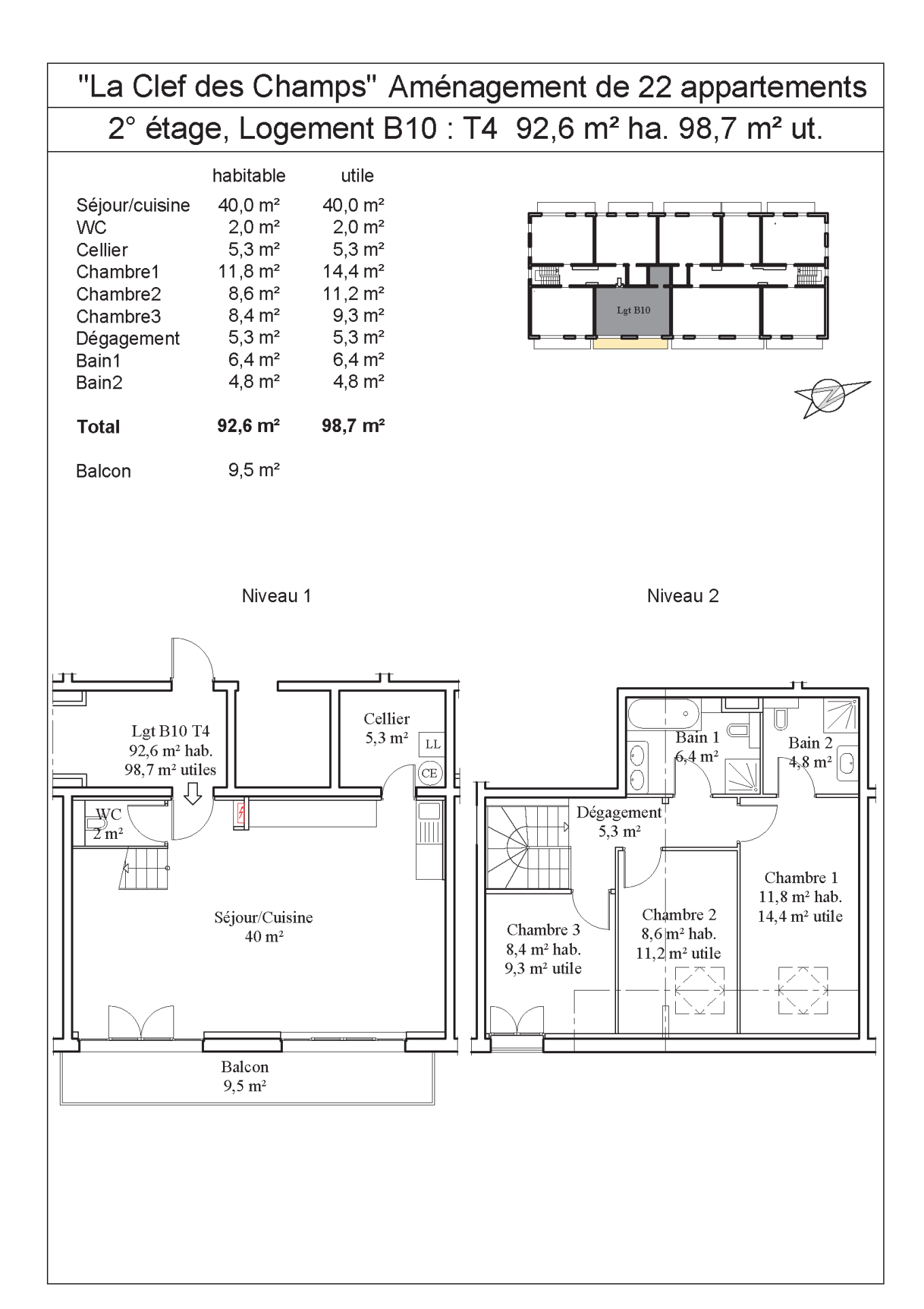
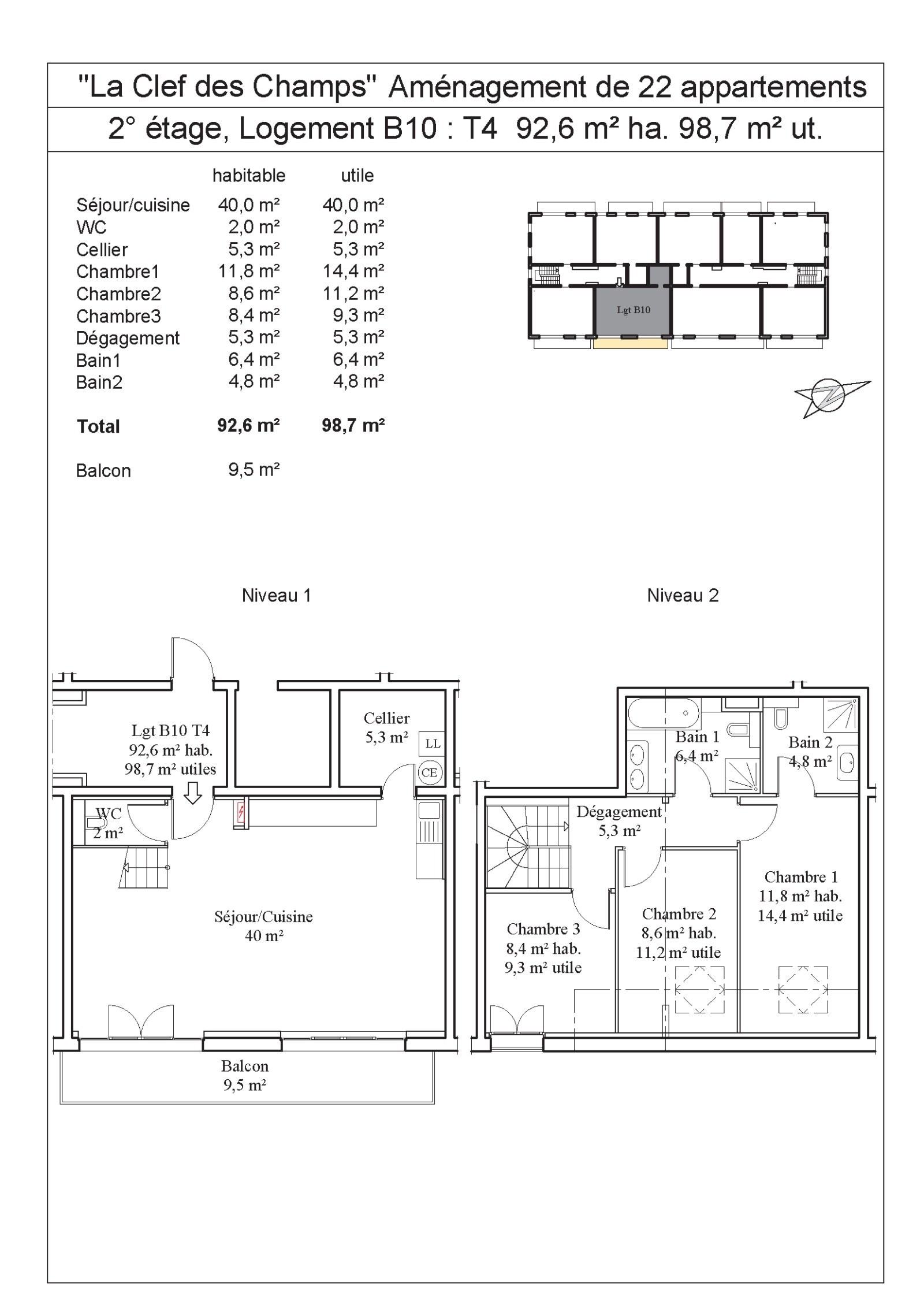
Surface habitable (m²) 92,60 m²
Nombre de chambre(s) 3
Nombre de pièces 4
Caractéristiques Valeurs
Nb de salle de bains 1
Cuisine Sans
Nombre de parking 1

Dans un cadre calme et verdoyant, tout en restant proche des commodités (écoles, commerces, transports scolaires), venez découvrir ce plateau brut de 95.3 m² situé au 2ème étage d’une résidence en cours de réhabilitation.

Ce bien rare offre de nombreuses possibilités d’aménagement selon vos besoins. Les réseaux (électricité, eau et évacuation) sont déjà installés pour faciliter vos travaux.

Vous disposerez également d’un balcon, d’une cave et d’une place de stationnement privative.

Vue Mont-blanc.

Plusieurs plateaux sont disponibles dans cette copropriété en pleine rénovation, idéale pour un projet de résidence principale, secondaire ou investissement locatif.

Caractéristiques :

  • Surface : 95.3 m²
  • Prix : 234 060 € (honoraires à la charge du vendeur)
  • Bien non soumis au DPE
  • Copropriété de 22 lots – aucune procédure en cours

Ce plateau est une véritable page blanche : concevez l’appartement qui vous ressemble, dans un cadre privilégié.

Contactez nous pour organiser une visite !

Les infos Financières

Prix de vente honoraires TTC inclus 234 060 €

Les infos Energetiques

DPE GES
DPE non concerné
Intéressé(e) par Ce bien ?

* Champ obligatoire

Les informations recueillies sur ce formulaire sont enregistrées dans un fichier informatisé par La Boite Immo agissant comme Sous-traitant du traitement pour la gestion de la clientèle/prospects de l'Agence / du Réseau qui reste Responsable du Traitement de vos Données personnelles. La base légale du traitement repose sur l'intérêt légitime de l'Agence / du Réseau. Elles sont conservées jusqu'à demande de suppression et sont destinées à l'Agence / au Réseau. Conformément à la loi « informatique et libertés », vous disposez des droits d’accès, de rectification, d’effacement, d’opposition, de limitation et de portabilité de vos données. Vous pouvez retirer votre consentement à tout moment en contactant directement l’Agence / Le Réseau. Consultez le site https://cnil.fr/fr pour plus d’informations sur vos droits. Si vous estimez, après avoir contacté l'Agence / le Réseau, que vos droits « Informatique et Libertés » ne sont pas respectés, vous pouvez adresser une réclamation à la CNIL. Nous vous informons de l’existence de la liste d'opposition au démarchage téléphonique « Bloctel », sur laquelle vous pouvez vous inscrire ici : https://www.bloctel.gouv.fr Dans le cadre de la protection des Données personnelles, nous vous invitons à ne pas inscrire de Données sensibles dans le champ de saisie libre.
Ce site est protégé par reCAPTCHA, les Politiques de Confidentialité et les Conditions d'Utilisation de Google s'appliquent.
contacter l'agence
Ces biens peuvent aussi vous intéresser
Exclusif
Thyez (74300)

T4 - 78M²- THYEZ - PROCHE LACS - DERNIER ETAGE - CAVE - GARAGE -...

Exclusif
Le Grand-Bornand (74450)

Appartement T2 - 37,80 m² - LUMINEUX - BALCON - ORIENTÉ SUD -...

Nous suivre sur